Lejos de decantarse por los colores pastel o estridentes a los que nos tienen acostumbrados la gran mayoría de este tipo de establecimientos, el estudio Vonsung optó por todo lo contrario: una heladería sobria, contenida y minimalista, en la que el color se concentra en los helados que venden. El estudio con sede en Londres y dirigido por John Vonsung, también se ha encargado de llevar a cabo toda la imagen corporativa de Gelato Polka, desde el nombre a la señalización.
El objetivo de la nueva marca de helados era abrir una heladería surtida sólo con los mejores ingredientes y transportar a la capital londinense, el local se ubica cerca de Fitzroy Square, la historia del tradicional helado italiano combinada con la venta de polos. El propietario del local, quería que su negocio fuera ilustrativo, abarcara un amplio abanico de clientes (desde jóvenes a mayores) y ofreciera una sensación de lujo al alcance de cualquiera teniendo en cuenta los difíciles tiempos que se viven.
Para dar forma al proyecto, el diseñador -a quien le gusta explorar materiales en cada uno de sus trabajos- se ha decantado por el hormigón de cal. Estando situado en un entorno histórico, consideró que la yuxtaposición entre el viejo y el nuevo material serviría para dar significado a ambos, como lo demuestra el uso del material arquitectónico exterior dentro de la heladería.
También hizo todo lo posible para que la "masa de cemento" no hiciese sentir incómodos a los visitantes y que sintieran el lugar como un espacio artístico. Los límites entre el muro interior y el techo se hicieron de manera que se creara una línea de sombra perimetral y también una brecha luminosa al fondo del local. Además, para reducir la forma monolítica del hormigón, se mezcló piedra caliza en el lote y aplicó un suave acabado al hormigón en bruto.
Ficha técnica:
Sobre Vonsung:
Ha llevado a cabo proyectos en Corea, Japón, Rusia, Turquía, Italia, Francia, Inglaterra y Estados Unidos, y ha sido premiado en varias ocasiones.
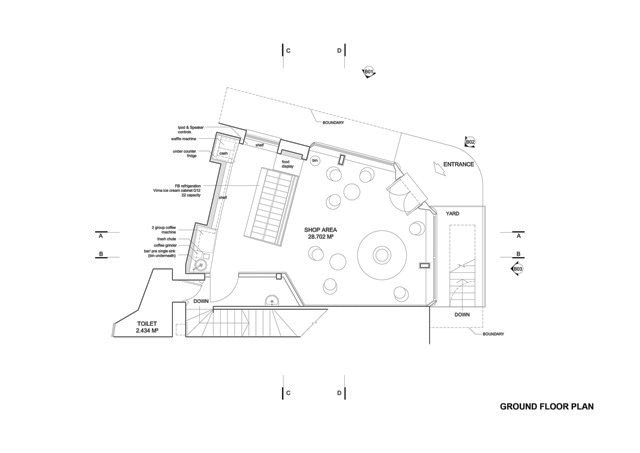
Planimetría:
Planta
Sección C-C
Una de las primeras trabas a sortear fue el cómo evitar que el diseño del nuevo establecimiento chocara radicalmente con la identidad original de su ubicación, un histórico edificio protegido. Además, se tomó la decisión de situar los helados y sus intensos colores como foco central y hacer que el interior que los rodeaba se asemejase a la naturaleza escultórica de un helado hecho a mano.
El concepto de esta boutique del helado ha jugado con dicotomías como masculino-femenino, adulto-niño y día-noche. Un juego que se refleja en el diseño a través del lenguaje formal y la calidad táctil de los acabados de los materiales utilizados. El interior se ha unificado bajo un mismo color y unos mismos materiales (el hormigón y la piedra caliza). En medio de todo ello, destaca un mobiliario masculino, en blanco y negro, de fuerte presencia y alejado de las formas convencionales. El establecimiento se ha diseñado de manera lúdica, haciendo que la distribución del mobiliario diese pie a distintas zonas que se intercomunican visualmente.
Para dar forma al proyecto, el diseñador -a quien le gusta explorar materiales en cada uno de sus trabajos- se ha decantado por el hormigón de cal. Estando situado en un entorno histórico, consideró que la yuxtaposición entre el viejo y el nuevo material serviría para dar significado a ambos, como lo demuestra el uso del material arquitectónico exterior dentro de la heladería.
También hizo todo lo posible para que la "masa de cemento" no hiciese sentir incómodos a los visitantes y que sintieran el lugar como un espacio artístico. Los límites entre el muro interior y el techo se hicieron de manera que se creara una línea de sombra perimetral y también una brecha luminosa al fondo del local. Además, para reducir la forma monolítica del hormigón, se mezcló piedra caliza en el lote y aplicó un suave acabado al hormigón en bruto.

El resultado fue un espacio interior "que despierta el sentimiento de ser privilegiado en el entorno". Un espacio sobrio y sereno, pero rico en texturas y con una delicada luz. Un lugar que mejorara con el paso del tiempo, con un paso circular que permite a los clientes experimentar el espacio de múltiples maneras gracias al mobiliario, ubicado en puntos claves a lo largo de la tienda, y al propio carácter del establecimiento.
Ficha técnica:
- Proyecto: Polka Gelato.
- Ubicación: Londres.
- Finalización: Agosto 2011.
- Diseño: Joseph Sung (VONSUNG).
- Branding: Michiko Ito (VONSUNG).
- Contratista: MKM Contracts.
- Iluminación: iGuzzini.
- Carpintería: Valchromat.
- Mobiliario: Modus y HAY.
- Fotografías: cortesía de VONSUNG.
Sobre Vonsung:
Nacido en la ciudad coreana de Seúl, en 1971, Joseph Sung es el fundador de VONSUNG, un estudio de diseño que ofrece servicios de diseño gráfico, producto, web y espacios interiores. Sung ha mostrado siempre un gran interés en el diseño, respetando los aspectos tradicionales de la arquitectura y el espacio, al mismo tiempo que cree en la ruptura de las fronteras. En cada trabajo, explora la relación entre la materia y el cuerpo humano, sosteniendo que "nos sentimos felices cuando estamos rodeados de partículas de dimensiones agradables. Nuestros cuerpos no se sienten confortables con una partícula que es más grande o más pequeña que el nivel óptimo".

Ha llevado a cabo proyectos en Corea, Japón, Rusia, Turquía, Italia, Francia, Inglaterra y Estados Unidos, y ha sido premiado en varias ocasiones.
Planimetría:

Planta
Alzado fachada

Sección A-A

Sección C-C
Información e imágenes facilitadas por Vonsung





















0 comments:
Post a Comment