Esta casa ha sido proyectada por el gabinete de arquitectura islandés Studio Granda. La vivienda se encuentra situada en Gardabaer, un pequeño pueblo cercano a Reykjiavik, concretamente en un barrio que disfruta de vistas panorámicas de la capital de la región y del océano Atlántico.
El aspecto austero de su exterior se ha conseguido con la utilización en el techo y las fachadas exteriores de una envoltura de cobre puro, dispuesta en chapas de forma acentuadamente rectangular.
Los muros tienen aberturas mínimas en las fachadas que miran a la ciudad, mientras que en la parte que da al jardín privado, el volumen está subdividido en una serie de terrazas a las que se accede mediante grandes puertas correderas de cristal.
En el interior, la casa se transforma en un cálido escenario –aun manteniendo la austeridad del exterior- libre de elementos innecesarios. Aquí se ha utilizado una paleta simple de materiales y colores: nogal negro, piedra caliza y acero inoxidable en una serie de volúmenes blancos.
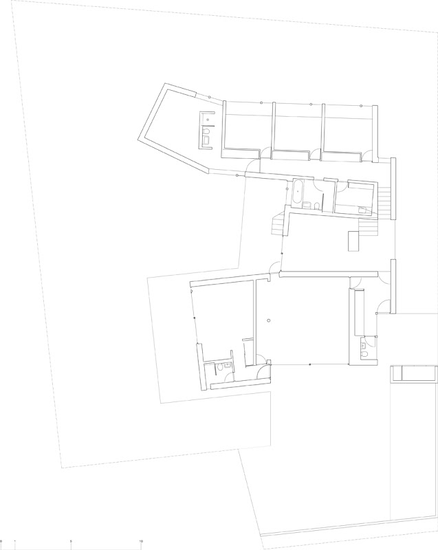
La entrada está situada al sur, en un nivel medio que también sirve de garaje. Las habitaciones se han dispuesto en la planta baja ya que se ha reservado el nivel superior a las zonas públicas –como el salón, el comedor y la cocina- con el fin de disfrutar de las magníficas panorámicas del océano.
Fotografías: Åke E:son Lindman
Studio Granda fue establecido por Margrét Hardardóttir y Steve Christer en Reyjkiavik (Islandia) en 1987. Sus trabajos abarcan diferentes campos (comercial, educativo, residencial, producto,…) y han sido recogidos en libros, revistas y blogs.
Residencia Skrúdás. 
Localización: Gardabaer (Islandia).
Proyecto: Studio Granda.
Diseño: 2000-2004.
Construcción: 2002-2004.
Estructuras e ingeniería: Vidsjá.






















 







 
 
 
 
 
 
 
 
 
 
0 comments:
Post a Comment